The Image of Ennenda

Gespeichert von sia2 am Do., 15.08.2024 - 17:26
Hauptbild_Masterarbeiten
Schule
ETHZ
Jahr

Projekt von

Projekt von

Emily Tobler

Begleitung

Begleitung

Adam Caruso

The Image of Ennenda
Text Masterpreis

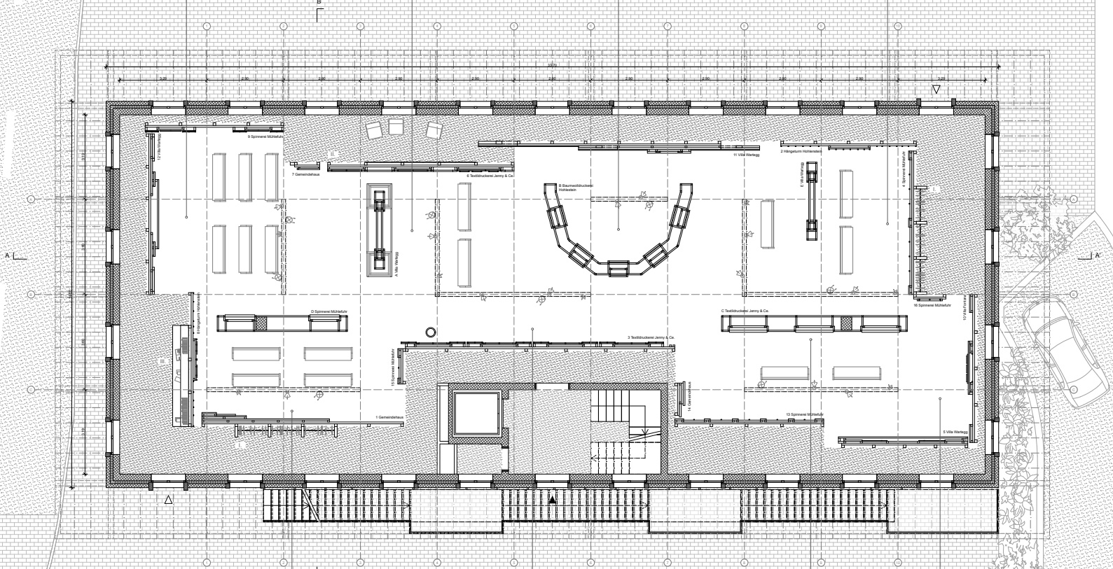
The textile industry has left an indelible mark on the village of Ennenda in Glarus. It’s architecture and facades stand as testament to a bygone era, embodying both industrial prowess and wealth. Based on a palimpsest produced in the research phase of the project, the proposed Anna Göldi museum expansion captures the layers of Ennenda’s history in an exhibition of its facades. As a ghostly presence, these set pieces shift between being a backdrop for dynamic projections and standing as delicate shadows that evoke the essence of Ennenda’s past. A significant part of this work involved discovering how to create the set pieces. The premise was to use a regular timber frame, suspended between floor and ceiling, and enveloped by a transparent textile, referred to as the «ghost» of the facade. The wooden substructures are covered with fabric, cut according to patterns, and then reinforced with resin to form solid shells.

Text/Bild-Image
Bild/Text-Image
Bildbeschreibung
Bilder zur Verfügung gestellt / Images mises à disposition avec le projet / Foto courtesy
Text/Bild-Image

Weitere Projekte

HEIA-FR
Anerkennung
2024
Projekt von:

Léo Laurence

Begleitung:

Götz Menzel, Dafni Retzepi

BFH
2024
Projekt von:

Raphael Sommer

Begleitung:

Marcel Jäggi

ETHZ
Anerkennung
2023
Projekt von:

Marine Gigandet, Janosch Kirchherr, Johannes Pfeifle

Begleitung:

An Fonteyne, Philip Ursprung